188    2    0  

Innspill til hovedetasje

 918     OSLO     0
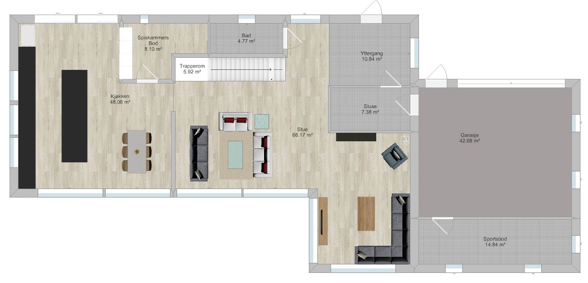
Vil gjerne ha innspill på denne planløsningen for hovedetasjen vår. Det er en skråtomt der både garasje og hovedinngang blir oppe i andre etasje. Planløsningen er feil i forhold til Nord/Sør, så nord er egentlig ganske rett mot venstre.

Vinduer og dører er ikke veldig gjennomtenkt enda. Kjøkkenet er tenkt uten overskap, og det blir nok noen vinduer over benken (som er ekstra dyp og foreløpig satt til 80cm). Stekeovner o.l. er plassert i høyskap på veggen mot spiskammerset. Veldig interresert i input på hvor kjøleskapet burde plasseres. Øverst i kjøkkenet er det skyvedører ut til et utekjøkkenområde.

Trapp opp starter til høyre ved yttergangen. Trapp ned har et lite platå der teksten "Trapperom" står nå, og går så under den andre trappen.

Innspill til hovedetasje - Plan_hoved1.jpg - tonyG

   #1
 705     Vestlandet     0
Synes det ser ganske greit ut. Hvor kjøleskapet skal stå, kommer jo an på hvor platetopp og vask skal være slik at du får en god arbeidstrekant. Skal kjøleskapet være frittstående eller integrert? Side-by-side, kombiskap eller et kjøleskap og fryseskap ved siden av hverandre?

Skal det være et høyt vindu over TV-en?
Trenger dere så mye vinduer i sportsboden? Tar jo veggplass.
Hvor skal dere ha yttertøy? Jeg ville vurdert å fjerne vinduet i yttergangen mot garasjen og så flyttet døren mellom slusen og yttergangen litt til venstre. Da får du plass til en garderobe på veggen til høyre i gangen.
Skal det være en liten åpning øverst mellom kjøkken og stue uten dør? Jeg ville ha valgt en skyvedør der slik at dere kan lukke igjen ved behov.
  (trådstarter)
   #2
 918     OSLO     0
Vi vil helst ha et større frittstående kjøleskap. Kjølehjørne er vurdert, men kona synes ikke de er spesielt pene. Det blir nok et fryseskap på den veggen mot spiskammerset, og muligens en fryseskuff i tillegg. Akkurat dette har vi bare diskutert løst foreløpig.

Vi er usikre på vindusløsning i tv-kroken. Tar gjerne imot input både på veggen tv'en står på og den nedre veggen.

Veldig aktuelt å endre på vinduer i yttergangen. Jeg vil helst ha muligheten til å se ut mot innkjørselen, så det blir ikke en ren skapvegg, men det kan hende det blir et smalere vindu. Det er også plass til mye garderobe inne i slusen (2,0m x 3,8m).

Vi vil helst kunne stenge kjøkkenet helt av, så det blir ingen åpning øverst mellom kjøkken og stue. Skyvedør er sterkt vurdert. Det vurderes faktisk å gjøre hele veggen til en skyveløsning, men det må diskuteres litt med teknisk tegner først.

Trenger absolutt ikke så mye vinduer i sportsboden, men tanken er noen små vinduer høyt på veggen for å slippe inn litt lys, og kunne lufte ekstra ved behov.