705    5    0  

Bærende vegger eller bæring i yttervegg?

 4     0
Har en enebolig fra 1975. Jeg ønsker å rive tre vegger i 1.etg, men er ikke 100% sikker på om de er bærende eller ikke. Byggetegningen hjelper ikke så mye. Huset har W-takstoler med spenn på cirka 6,2 meter.

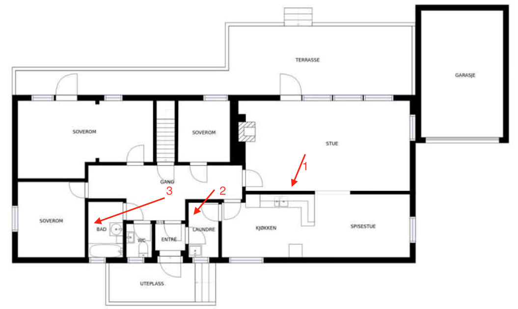
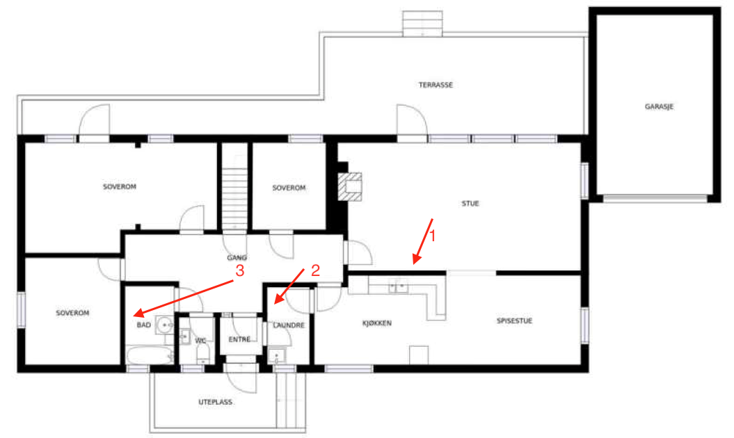
1.etg
 Bærende vegger eller bæring i yttervegg? - Fjernevegg.png - Mr.amatør
Kjeller
 Bærende vegger eller bæring i yttervegg? - Fjernevegg kjeller.png - Mr.amatør
 Bærende vegger eller bæring i yttervegg? - takstol.jpeg - Mr.amatør
 Bærende vegger eller bæring i yttervegg? - takstol2.jpeg - Mr.amatør
 Bærende vegger eller bæring i yttervegg? - takstol3.jpeg - Mr.amatør

   #1
 5,967     OSLO     0
du har nok selvbærende W takstoler

vegg 2 og 3 er 90% sikkert ikke bærevegg.

Tviler også på om vegg 1 er bærende siden stolene er selvbærende.  hvor tykk er den veggen i stua?
ser det ut som den er satt opp "etterpå"? dvs går takpanel/plater over veggen?

i følge tegningen du har lagt ut, så står ikke veggen i stua over veggen i kjelleren, ergo enda mindre sannsynlig den er bærende. veggen i kjelleren er nok bærende, dvs den bærer nok gulvet i 1etg
   #2
 25,577     Akershus     0
Tror heller ikke at vegg 1 er bærende. Den ligger mellom knutepunktene i undergurten og det er ikke noe gulvlast på undergurten. Den er trolig spinkel og bærer ikke vertikallast fra understøttelse.
Signatur
  (trådstarter)
   #3
 4     0
Takk for raskt svar Smile

Jeg har ikke revet innvendig panel, og har derfor ikke den reelle tykkelsen. Hva er tykkelsen av en typisk bærende vegg? Hva er dimensjonen av stenderne i bærende vegger?

Det går ikke takpanel over veggene, legger ved en bilde.

Det er riktig som du sier, veggene i stua står ikke over veggen i kjelleren.

 Bærende vegger eller bæring i yttervegg? - Skjermbilde 2021-11-20 kl. 22.23.32.png - Mr.amatør
   #4
 5,967     OSLO     0
48x98 og oppover er ofte bærende, men må ikke være det. er feks veggen lagd av 48x73 er den nok ikke bærende.

men i gamle hus kan man aldri være helt sikker, mye rart ble gjort



men i ditt tilfelle, på grunn av de takstolene du har, og at veggen i stue 1etg ikke står over veggen i kjelleren, så er nok ingen av de veggene du lurer på, bærende
   #5
 7,079     Akershus     0
Vegger som går parallelt med takstolene er ikke bærende. Er forøvrig enig med innleggene over, dette er selvbærende takstoler.


.Thag